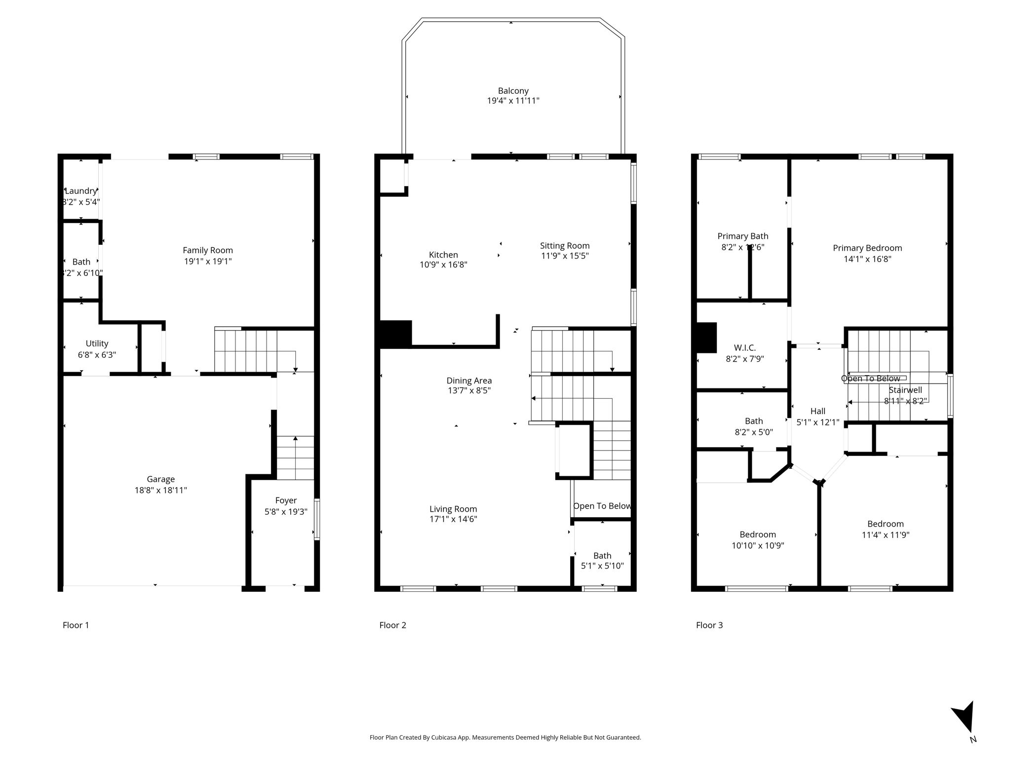
Overview

Welcome to this pristine brick-front end-unit townhouse in the highly sought-after South Market / Villages of Piedmont community in Haymarket. Boasting three levels of living space with over 2,000 square feet of living space; this immaculate home is a 10 out of 10! Step into an inviting main level with hardwood floors, open-concept living/dining area, and a gourmet kitchen featuring granite countertops, a center island, upgraded stainless steel appliances, and abundant cabinet space. Large windows flood the space with natural light, and the deck just off the kitchen backs to woods, creating a serene backdrop for relaxing or entertaining. Upstairs you’ll find a generous primary suite with a walk-in closet and a spa-style en-suite bath with separate vanities, soaking tub and separate shower. Two additional bedrooms, a full bath, walk-in closets complete the upper level. The lower level includes a versatile exercise room, den, or office, half-bath, and access to the 2-car garage. Situated in the Villages of Piedmont community, this home enjoys access to all the amenities including a clubhouse, two swimming pools, playgrounds, walking/bike trails, tennis, pickleball, volleyball and basketball courts. The property backs to a 380-acre permanent conservation area known as Leopold’s Preserve, offering direct access to wooded trails and giving you tranquil green-space views from your rear deck. Commute & Lifestyle: Located just minutes from I-66 and Rt 15, convenient to shopping, dining, and the historic town of Haymarket, situated midway between the Journey Through Hallowed Ground National Heritage Area and Scenic Byway; this is the one you have been waiting for! Upgrades: Refrigerator, Dishwasher, Microwave, Range (2017). Hot water heater (2017). Carpet (2017). Garage door and opener (2020). Painted (2023).

Property Type Town house
MLS # VAPW2106776
Year Built 2010
Garage Attached
pattern image
Final-1
Final-7
pattern white image

Features

check mark icon Open Floor Plan
check mark icon Community Clubhouse
check mark icon Community Pool
check mark icon Walk-In Closets
check mark icon Hardwood Floors
check mark icon Shopping Nearby
check mark icon Side-by-Side Washer and Dryer
check mark icon High Ceilings
check mark icon Large Kitchen
check mark icon Crown Moldings
check mark icon Upgraded Countertops
check mark icon Stainless Steel Appliances
pattern white image
pattern white image

Floor Plans

pattern white image

Presented by

/
user headshot
Jimmy Myers
REALTOR® Samson Properties (703) 304-6899 DRE: 0225264060
pattern white image

Get in touch

Thank you!

Your message is sent.

We will be in touch with you soon.

pattern image

Location

pattern image